日本少妇高潮日出水了,伦理《少妇的滋味》播放,少妇与子亂伦HD,少妇激情偷公乱140章,少妇大屁股白浆流出白浆,巜饥渴的少妇HD高清

當前位置:
新聞資訊

2021-06-04 發布者:今泰裝飾 瀏覽次數:

某最新簽約辦公室項目

由今泰設計師胡冰玉、喻劼領銜,

團隊在溝通過程中提煉出

客戶想追求的

“時尚、簡約”的訴求,

 

/

 

經過多次耐心的交流下,

最終定下現代簡約的設計風格。

今泰君“截獲”設計方案稿

帶大家一覽該項目的設計思路吧~

現代簡約辦公室設計 詮釋高端大氣之美(圖1)
現代簡約辦公室設計 詮釋高端大氣之美(圖2)
 

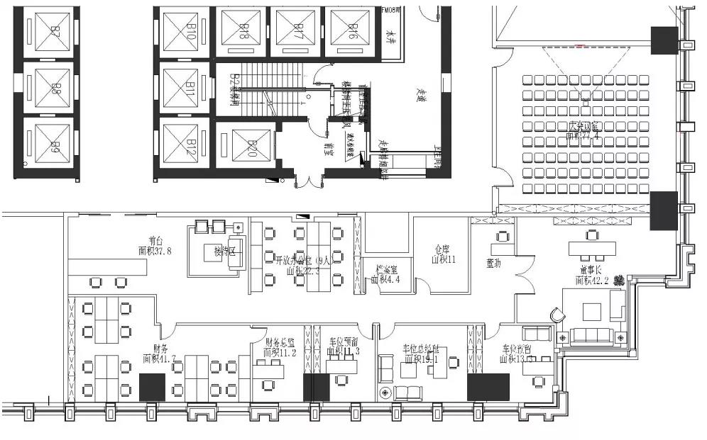
平面

 

///

現代簡約辦公室設計 詮釋高端大氣之美(圖3)
現代簡約辦公室設計 詮釋高端大氣之美(圖4)

現代簡約辦公室設計 詮釋高端大氣之美(圖5)

現代簡約辦公室設計 詮釋高端大氣之美(圖6)

現代簡約辦公室設計 詮釋高端大氣之美(圖7)
 

整體以木色、黑色配合空間大面積白色,再以翠綠點綴,使員工辦公的心情能夠沉靜下來,工作效率自然可以得到提高。

現代簡約辦公室設計 詮釋高端大氣之美(圖8)

沉穩的木色加上溫和明亮的自然光顯得整個空間能夠更加的流暢明亮,光線柔和有度,在這樣的環境中辦公讓人更加寧靜,整體也會感覺比較舒適。

現代簡約辦公室設計 詮釋高端大氣之美(圖9)

現代簡約辦公室設計 詮釋高端大氣之美(圖10)
 

///

 

本案辦公室設計追求高端、簡約、大氣之感,讓整個空間顯得張弛有度,層次分明,去掉多余而浮躁的元素,用最直接的設計,體現出企業人性化的、舒適的工作氛圍。

現代簡約辦公室設計 詮釋高端大氣之美(圖11)
 

辦公空間 | 教育培訓 | 商鋪空間 | 餐飲空間

 

 
 

4007-368-006

 
 

 

 更多精美案例

請戳一戳

現代簡約辦公室設計 詮釋高端大氣之美(圖12)

現代簡約辦公室設計 詮釋高端大氣之美(圖13)


 

 
 

服務熱線:4000-330-699 地址:武漢市武昌區和平大道三角路福星惠譽水岸國際K4棟6-4-5號 版權所有 All Rights Reserved 今泰裝飾 鄂ICP備15011072號-2
  • 姓名:
  • 手機:
  • 類型:
  • 面積:
您也可以致電人工服務熱線極速報價??無需等待 4000-330-699
欢迎光临: 阿瓦提县| 彭山县| 永济市| 修文县| 宝鸡市| 临洮县| 南丹县| 邯郸市| 大荔县| 噶尔县| 吉林省| 阜新市| 马山县| 丹棱县| 乌拉特后旗| 宜昌市| 富阳市| 鄂尔多斯市| 手机| 宣化县| 大渡口区| 公主岭市| 闸北区| 腾冲县| 新津县| 南岸区| 临清市| 连山| 曲周县| 子洲县| 丹棱县| 波密县| 方山县| 晋州市| 苍梧县| 开江县| 曲沃县| 镇赉县| 昔阳县| 聂拉木县| 独山县|