日本少妇高潮日出水了,伦理《少妇的滋味》播放,少妇与子亂伦HD,少妇激情偷公乱140章,少妇大屁股白浆流出白浆,巜饥渴的少妇HD高清

當前位置:
新聞資訊

2021-07-16 發布者:今泰裝飾 瀏覽次數:

項目類型:教育空間
建筑面積:1300平米
該項目業務形態為新型兒童教育,旨在挖掘和培養孩子在音樂方面的天賦和潛能,提高綜合藝術修養。


如何通過空間設計突破固化的結構限制,實現開放、自由、靈活的現代教學環境,
并讓孩子與空間產生親密感,是設計所思考的首要問題。
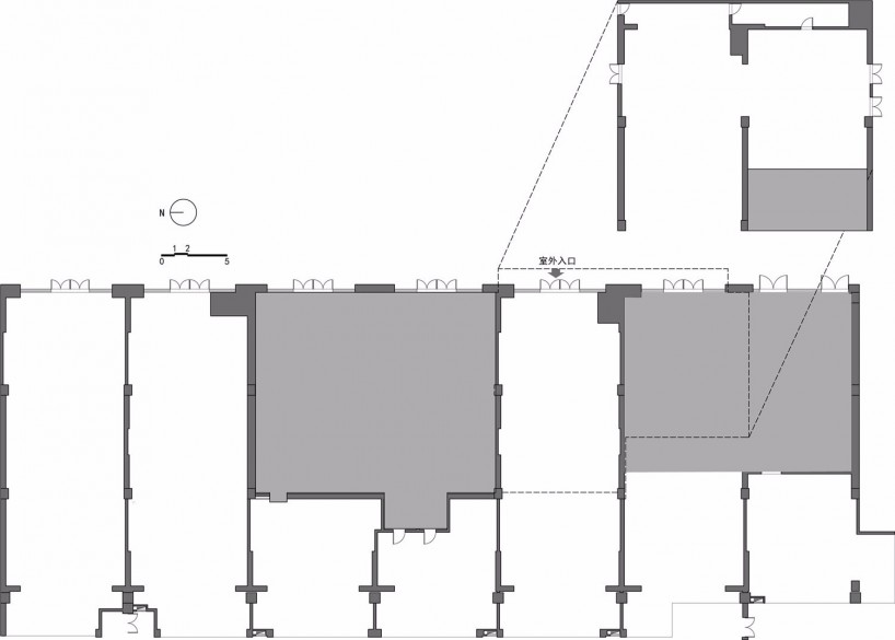
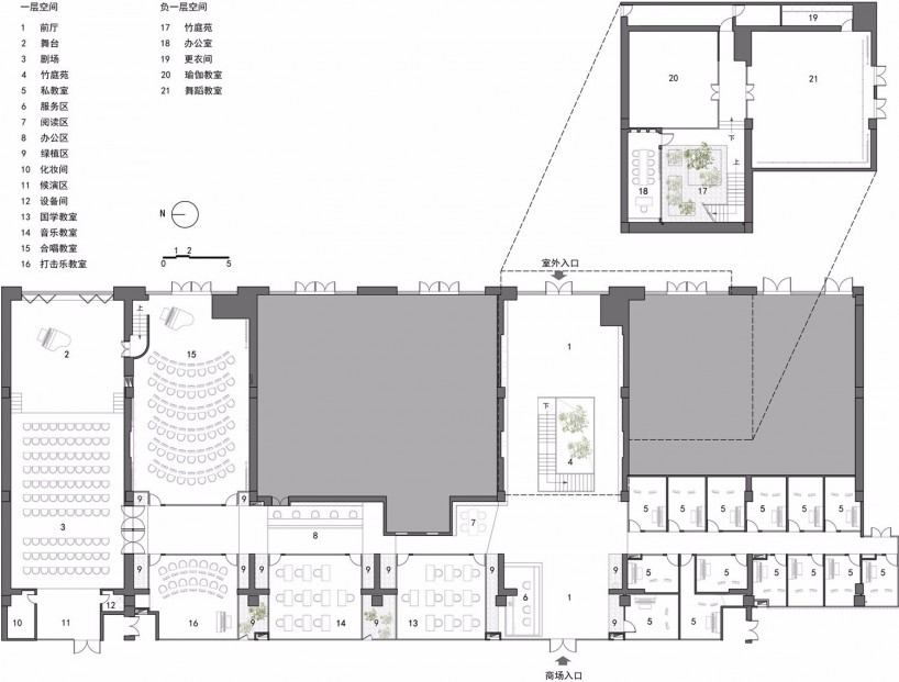
項目分布于商場一層七個柱跨之間,空間基本結構是框架+剪力墻,
總面積約1000平米,并附帶約300平米的地下室。







教育空間-音樂天地,親切、自然,更顯靈動(圖1)




在設計施工上盡量拆除了所有砌塊墻體,打通原本封閉的房間,用一條走廊將教室及公共空間進行連接,
所有教學空間向商場中庭水平展開,包括音樂教室、私教室、接待廳、劇場和排練廳等。




坡折的屋頂延伸至墻面和地面,構成了連續延伸的教室和公共區域。
整個教學空間好似一座半透明的“室內村落”,根據使用需求呈現出多樣的尺度與質感空間,
讓孩子在親切、自然、舒適的環境中演奏和學習。




教育空間-音樂天地,親切、自然,更顯靈動(圖2)


教育空間-音樂天地,親切、自然,更顯靈動(圖3)


教育空間-音樂天地,親切、自然,更顯靈動(圖4)


教育空間-音樂天地,親切、自然,更顯靈動(圖5)


教育空間-音樂天地,親切、自然,更顯靈動(圖6)


教育空間-音樂天地,親切、自然,更顯靈動(圖7)


教育空間-音樂天地,親切、自然,更顯靈動(圖8)


教育空間-音樂天地,親切、自然,更顯靈動(圖9)


教育空間-音樂天地,親切、自然,更顯靈動(圖10)


教育空間-音樂天地,親切、自然,更顯靈動(圖11)





教育空間-音樂天地,親切、自然,更顯靈動(圖12)



教育空間-音樂天地,親切、自然,更顯靈動(圖13)
 

服務熱線:4000-330-699 地址:武漢市武昌區和平大道三角路福星惠譽水岸國際K4棟6-4-5號 版權所有 All Rights Reserved 今泰裝飾 鄂ICP備15011072號-2
  • 姓名:
  • 手機:
  • 類型:
  • 面積:
您也可以致電人工服務熱線極速報價??無需等待 4000-330-699
欢迎光临: 苍南县| 泾源县| 镇平县| 钦州市| 红桥区| 措美县| 白山市| 东源县| 买车| 垣曲县| 石门县| 吴川市| 温泉县| 万州区| 广饶县| 自贡市| 静海县| 汝南县| 松原市| 建始县| 湄潭县| 西畴县| 铜川市| 鱼台县| 旬邑县| 左权县| 长子县| 庆元县| 西城区| 华容县| 永新县| 南投市| 都昌县| 克什克腾旗| 都匀市| 禹州市| 广丰县| 木兰县| 麻江县| 涿鹿县| 中卫市|