日本少妇高潮日出水了,伦理《少妇的滋味》播放,少妇与子亂伦HD,少妇激情偷公乱140章,少妇大屁股白浆流出白浆,巜饥渴的少妇HD高清

當前位置:
新聞資訊

2024-04-18 發布者:admin 瀏覽次數:

【辦公案例】武漢郎滌,員工的第二個心靈居所(圖1)


【辦公案例】武漢郎滌,員工的第二個心靈居所(圖2)


CORPORATE GENE 企業基因

企業精神:愛崗敬業,致力環保,團結協作,技術創新,艱苦創業。

公司使命:為人類創造“藍天白云,清流碧水”的美好生存環境。

【辦公案例】武漢郎滌,員工的第二個心靈居所(圖3)

朗聚天地之氣,滌蕩萬里長空

【辦公案例】武漢郎滌,員工的第二個心靈居所(圖4)

DESIGN ORIENTATION 設計定位

【辦公案例】武漢郎滌,員工的第二個心靈居所(圖5)


INTELLIGENT OFFICE SUGGESTIONS 智能辦公建議 

現代國際化,生態、智能、創新


【辦公案例】武漢郎滌,員工的第二個心靈居所(圖6)

STYLE ANALYSIS 風格分析

中古風格"Midcentury modern"本身是一個很難定義的詞,其實它指向的是20世紀中葉(大概從1933年到 1965年)的建筑,室內,家具和平面設計的風格。得益于20世紀初的工業革命,設計師們可以運用像塑料這樣現在被人百般詬病的新材料;兩次世界大戰打破 原來階級差距巨大的傳統社會制度,設計師們放飛對未來的生活的幻想,設計出這些線條流暢簡潔,美觀而 實用的室內和家具,服務于二戰后產生的社會新階級:中產階級。

【辦公案例】武漢郎滌,員工的第二個心靈居所(圖7)


【辦公案例】武漢郎滌,員工的第二個心靈居所(圖8)

設計需求

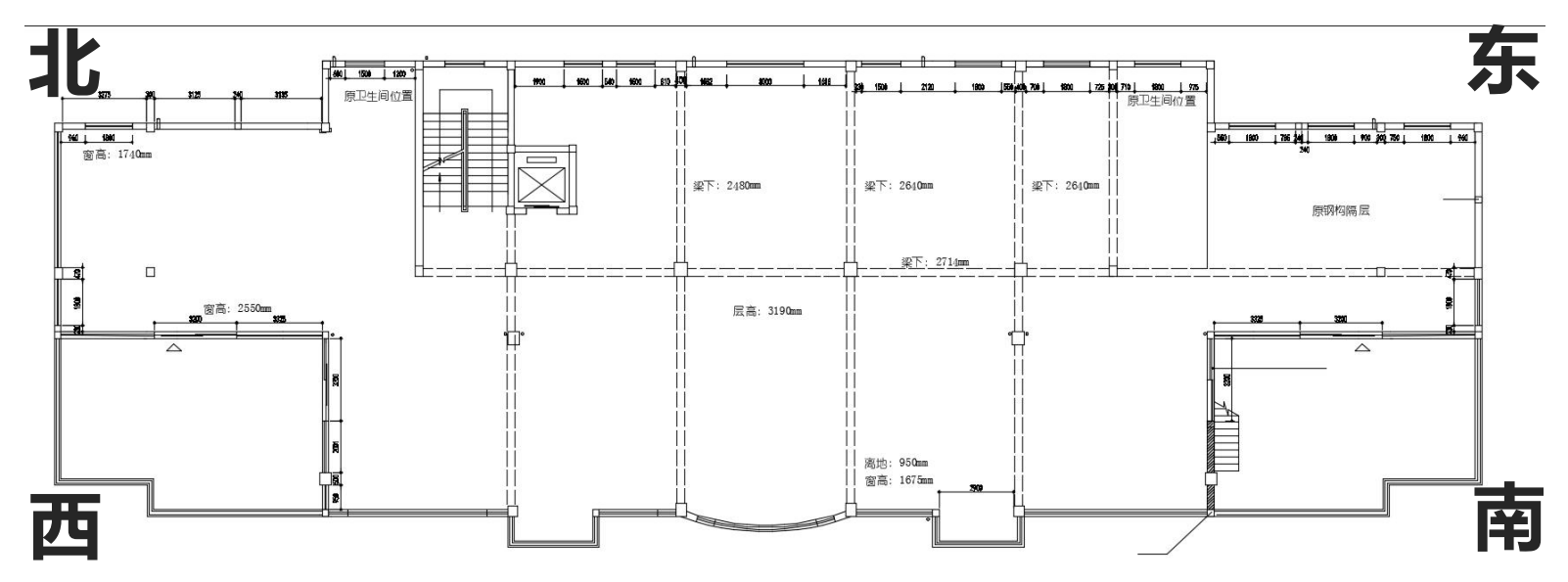
精裝修:布局要求 建筑面積931 ㎡ 

套內面積:約906.7㎡

 

A.方案一(重點) 

1.董事長辦公室:帶休息室 一間 

2.副總辦公室:各帶休息室 二間 

3.大空間辦公室:25人工位以及5~6人會議桌。 

4.財務室:2人工位,不帶票據室 

5.綜合辦公室:2人工位

6.備用辦公室:一人工位 

7.VIP接待室:10人左右,帶茶水間 

8.多媒體室兼會議室:30人 

9.公共衛生間;男女蹲位各兩個 

10.露臺:左右兩個景觀設計。右邊設置一部上屋面梯。

 

B.方案二

1.董事長辦公室:帶休息室及獨立衛生間,一套 

2.副總辦公室:各帶休息室及獨立衛生間,二套 

3.健身房

4.VIP接待室:10人左右,

5.多媒體室兼會議室:30人 

6.公共衛生間:男女蹲位各兩個 

7.獨立茶水間 

8.露臺:左右兩個景觀設計;右邊設置一部上屋面梯 

9.機房及設備間

【辦公案例】武漢郎滌,員工的第二個心靈居所(圖9)

【辦公案例】武漢郎滌,員工的第二個心靈居所(圖10)

【辦公案例】武漢郎滌,員工的第二個心靈居所(圖11)

【辦公案例】武漢郎滌,員工的第二個心靈居所(圖12)

【辦公案例】武漢郎滌,員工的第二個心靈居所(圖13)

【辦公案例】武漢郎滌,員工的第二個心靈居所(圖14)


【辦公案例】武漢郎滌,員工的第二個心靈居所(圖15)


【辦公案例】武漢郎滌,員工的第二個心靈居所(圖16)

【辦公案例】武漢郎滌,員工的第二個心靈居所(圖17)


【辦公案例】武漢郎滌,員工的第二個心靈居所(圖18)

【辦公案例】武漢郎滌,員工的第二個心靈居所(圖19)

空間效果圖

【辦公案例】武漢郎滌,員工的第二個心靈居所(圖20)

【辦公案例】武漢郎滌,員工的第二個心靈居所(圖21)

【辦公案例】武漢郎滌,員工的第二個心靈居所(圖22)

【辦公案例】武漢郎滌,員工的第二個心靈居所(圖23)

【辦公案例】武漢郎滌,員工的第二個心靈居所(圖24)

【辦公案例】武漢郎滌,員工的第二個心靈居所(圖25)

【辦公案例】武漢郎滌,員工的第二個心靈居所(圖26)

【辦公案例】武漢郎滌,員工的第二個心靈居所(圖27)

服務熱線:4000-330-699 地址:武漢市武昌區和平大道三角路福星惠譽水岸國際K4棟6-4-5號 版權所有 All Rights Reserved 今泰裝飾 鄂ICP備15011072號-2
  • 姓名:
  • 手機:
  • 類型:
  • 面積:
您也可以致電人工服務熱線極速報價??無需等待 4000-330-699
欢迎光临: 香格里拉县| 长沙市| 当涂县| 永寿县| 阿拉善盟| 万荣县| 高台县| 扎兰屯市| 长顺县| 杭锦后旗| 胶州市| 麦盖提县| 和顺县| 甘德县| 云南省| 邻水| 阿克| 北京市| 漳州市| 通辽市| 承德市| 分宜县| 玛曲县| 台南市| 靖宇县| 苏尼特左旗| 长泰县| 蒙自县| 桂林市| 南丰县| 将乐县| 阿瓦提县| 石首市| 沈阳市| 武夷山市| 交城县| 股票| 绥化市| 济阳县| 靖边县| 乌拉特后旗|